Odborný poradca

1adviserItem->name ATRIUM SK, s.r.o. +421 484 146 187
info@atrium-sk.sk

Kontaktujte odborného poradcu a dozviete sa viac o našich domoch.

Realizácia tohto domu prebehla v roku 2016.

Rodinný dom upravujeme na mieru. Dom staviame v difuzne otvorenej konštrukcii DifuTech®

Špecifikácia domu:

  • TYP KONŠTRUKCIE: Difúzne otvorená stĺpiková konštrukcia DifuTech® Clima Comfort, hr. 336 mm 
  • VÝPLŇOVÉ KONŠTRUKCIE: Kvalitné plastové okná Rehau Geneo s izolačným trojskom Uw= 0,5 W/m
  • STREŠNÁ KONŠTRUKCIA: sedlová strecha so sklonom 25°, krytina Bramac Klasik s technológiou Star
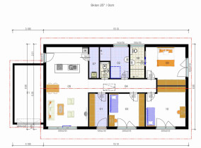
  • ZASTAVANÁ PLOCHA: 134,39 m+ garáž 20,42 m2
  • ÚŽITKOVÁ PLOCHA: 115 m2 
  • VYKUROVANIE V DOME: kombinácia elektrického podlahového vykurovania - rohože ECOFLOOR a stropných infrafólií ECOFILM, decentrálny systém vetrania inVENTer

Máte záujem o bližšie informácie o tejto drevostavbe? Kontaktujte  sa na telefónnom čísle 048 41 46 187 alebo e-mailom info@atrium-sk.sk

Každý dom upravujeme na mieru jeho budúcim obyvateľom. 

Každý stupeň dokončenia má v štandarde difúzne otvorený konštrukčný systém ATRIUM DifuTech. Vďaka tomu je dom veľmi dobre izolovaný a šetrí majiteľom náklady na vykurovanie.