Odborný poradca

1adviserItem->name Ing. arch. Eva Kutišová 0940 604 269
kutisova@atrium-sk.sk

Kontaktujte odborného poradcu a dozviete sa viac o našich domoch.

Individuálny dom - Vedľajší dom / Bratislava DNV

Rodinný dom pozostávajúci z hlavného domu a vedľajšieho domu.

Dom odovzdaný do užívania v roku 2021 v jednotlivých krokoch výstavby

Špecifikácia vedľajšieho domu:

Drevovom staviame v štandarde na kľuč – ALL INCLUSIVE V tomto variante dokončenia drevodomu ponúkame vyšší štandard vybavenia, stačí Vám už len dorobiť svietidlá a kuchynskú linku a môžete sa nasťahovať.

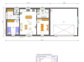
  • ZASTAVANÁ PLOCHA146 m2, pôdorys 17,2 x 8,5 m
  • ÚŽITKOVÁ PLOCHA108,80 m2, obývačka spojená s kuchyňou, 2 x izba, kúpeľňa, WC
  • TYP KONŠTRUKCIEDifúzne otvorená stĺpiková konštrukcia DifuTech® Clima COMFORT U= 0,14 W/m2 K
  • difutech-clima-comfort-alt.png
  • VÝPLŇOVÉ KONŠTRUKCIEKvalitné drevené eurookná s izolačným trojsklom Uw= 0,6 W/m2okno-drevene.jpg
  • STREŠNÁ KONŠTRUKCIAsedlová strecha so strešnou krytinou Bramac Tegalit s úpravou Star. bramac-tegalit.jpg
  • VYKUROVANIE V DOMEvodné podlahové vykurovanie Vissmann s napojením na plynovým kotol Vaillant UV so zásobníkom TÚV 120L

Máte záujem o bližšie informácie o tejto drevostavbe? Kontaktujte pani Ing. arch. Evu Kutišovú na telefónnom čísle 0940 604 269 alebo e-mailom kutisova@atrium-sk.sk