Odborný poradca

1adviserItem->name Norbert Gallov +421 908 478 216
gallov@atrium-sk.sk

Kontaktujte odborného poradcu a dozviete sa viac o našich domoch.

Typový dom Star 123 v prevedení stavba PLUS

montáž drevodomu prebehla v roku 2023 -  v jednotlivých krokoch výstavby . 

Typový drevodom STAR 123, upravený podľa individuálnych požiadaviek zákazníka v difúzne otvorenej konštrukcii DifuTech®

V prípade záujmu o prehliadku stavby, kontaktujte prosím : +421 908 478 216

Gallov web.jpg

Drevovom staviame v hrubej rozšírenej stavbe - STAVBA PLUS V tomto variante dokončenia drevodomu sú zahrnuté všetky profesie, bez interiérových prvkov, ako sú podlahy, dvere, kúpeľne. Chcete sa dozvedieť viac, čo dodávame v tomto variante.

Špecifikácia domu:

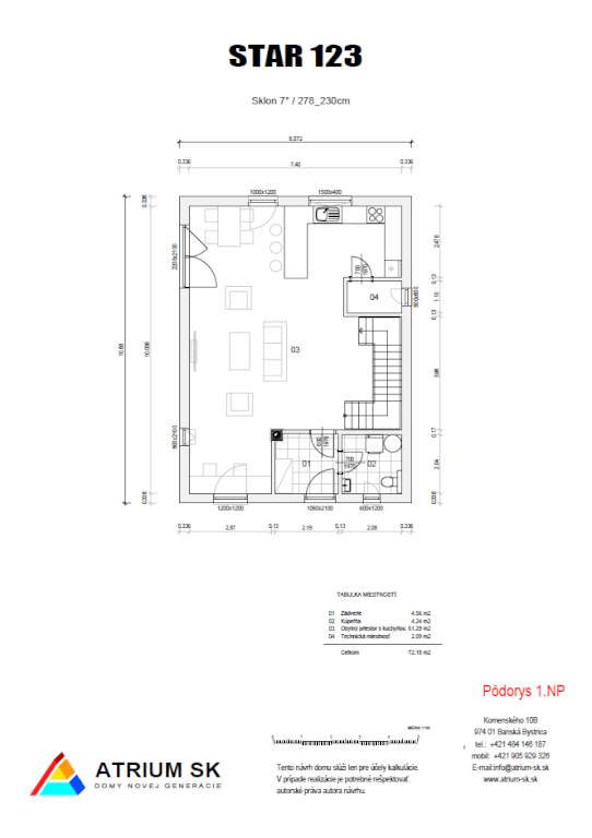
  • ZASTAVANÁ PLOCHA: 79,4 m2, pôdorys domu 10,60 x 8,07 m
  • ÚŽITKOVÁ PLOCHA: 136,72 m2, obývačka spojená s kuchyňou, 3 x izba,2 x kúpeľňa s WC, tech.miestnosť, špajza, šatník
  • TYP KONŠTRUKCIEDifúzne otvorená stĺpiková konštrukcia DifuTech® Clima COMFORT U= 0,14 W/m2 K 

difutech-clima-comfort-alt.jpg

  • STREŠNÁ KONŠTRUKCIA: pultová strecha so strešnou krytinou Bramac MAX 7° s úpravou Protektor.  bramac-klasik.jpg
  • VÝPLŇOVÉ KONŠTRUKCIE: Kvalitné kompozitové okná Rehau Geneo s izolačným trojsklom Uw= 0,5 W/m2K okno-plastove.jpg
  • VYKUROVANIE V DOME: elektrické podlahové vykurovanie Fenix a príprava TÚV zásobníkom Logitex 200L s napojením na 8 fotovoltaických panelov. vykurovanie-elektricke-podlahove-logitex.jpg

Máte záujem o bližšie informácie o tejto drevostavbe? Kontaktujte pána Norberta Gallova na tel.č. +421 908 478 216  alebo e-mailom gallov@atrium-sk.sk