
Odborný poradca

kutisova@atrium-sk.sk
Kontaktujte odborného poradcu a dozviete sa viac o našich domoch.
Individuálny dom 119 / Devín
Montáž drevodomu prebehla v roku 2021 v jednotlivých krokoch výstavby
Individuálny drevodom navrhnutý podľa predstáv zákazníkov v difuzne otvorenej konštrukcii DifuTech®
Špecifikácia domu:
Drevodom staviame v štandarde na kľuč – ALL INCLUSIVE. V tomto variante dokončenia drevodomu ponúkame vyšší štandard vybavenia, stačí Vám už len dorobiť svietidlá a kuchynskú linku a môžete sa nasťahovať.
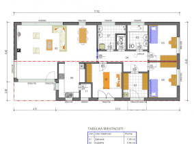
- ZASTAVANÁ PLOCHA: 149,68 m2, pôdorys 17,82 x 8,4 m
- ÚŽITKOVÁ PLOCHA: 119,47 m2, obývačka spojená s kuchyňou, 3 x izba, kúpeľňa, WC, špajza
- TYP KONŠTRUKCIE: Difúzne otvorená stĺpiková konštrukcia DifuTech® Clima COMFORT U= 0,14 W/m2 K
- VÝPLŇOVÉ KONŠTRUKCIE: Kvalitné kompozitové okná Rehau Geneo s izolačným trojsklom Uw= 0,5 W/m2K
- STREŠNÁ KONŠTRUKCIA: sedlová strecha so strešnou krytinou Bramac Platinum s úpravou Star.
- VYKUROVANIE V DOME: vodné podlahové vykurovanie Viessmann s napojením na plynový kotol Vaillant UV so zásobníkom TÚV 120L
Máte záujem o bližšie informácie o tejto drevostavbe? Kontaktujte pani Ing. arch. Evu Kutišovú na telefónnom čísle 0940 604 269 alebo e-mailom kutisova@atrium-sk.sk