Odborný poradca

1adviserItem->name ATRIUM SK, s.r.o. +421 484 146 187
info@atrium-sk.sk

Kontaktujte odborného poradcu a dozviete sa viac o našich domoch.

Montáž drevodomu Nova 136 prebehla v roku 2021 v jednotlivých krokoch výstavby

Typový drevodom, upravený podľa individuálnych požiadaviek zákazníka v difúzne otvorenej konštrukcii DifuTech®

Špecifikácia domu:

Drevodom staviame v štandarde na kľuč – ALL INCLUSIVE. V tomto variante dokončenia drevodomu ponúkame vyšší štandard vybavenia, stačí vám už len dorobiť svietidlá a kuchynskú linku a môžete sa nasťahovať.

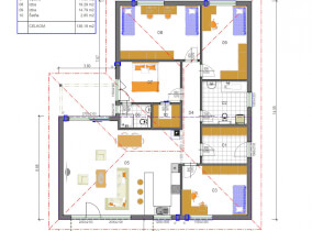
  • ZASTAVANÁ PLOCHA:  158,25 m2, pôdorys 12,88x14,55 m
  • ÚŽITKOVÁ PLOCHA: 136,19 m2, obývačka spojená s kuchyňou, 4 x izba, kúpeľňa, WC, tech.miestnosť, šatňa.
  • TYP KONŠTRUKCIE: difúzne otvorená stĺpiková konštrukcia DifuTech® Clima PLUS U= 0,16 W/m2 K difutech-clima-plus-alt.jpg
  • VÝPLŇOVÉ KONŠTRUKCIE: kvalitné drevené eurookná s izolačným trojsklom Uw= 0,6 W/m2okno-drevene.jpg
  • STREŠNÁ KONŠTRUKCIA: valbová strecha so strešnou krytinou Bramac Adria Montano 
  • VYKUROVANIE V DOME: elektrické podlahové vykurovanie Fenix a príprava TÚV zásobníkom Logitex 200L s napojením na 8 fotovoltaických panelov. vykurovanie-elektricke-podlahove-logitex.jpg
  • Vychytávky: decentrálny vetrací systém s rekuperáciou inVENTervychytavky-rekuperacia-inventer.jpg

Máte záujem o bližšie informácie o tejto drevostavbe? Kontaktujte 048 41 46 187 alebo e-mailom info@atrium-sk.sk